LOUISVILLE, Ky. (WDRB) -- The public got a chance to make their voices heard Tuesday evening about a proposed condominium project that would be the biggest of its kind in Prospect. 

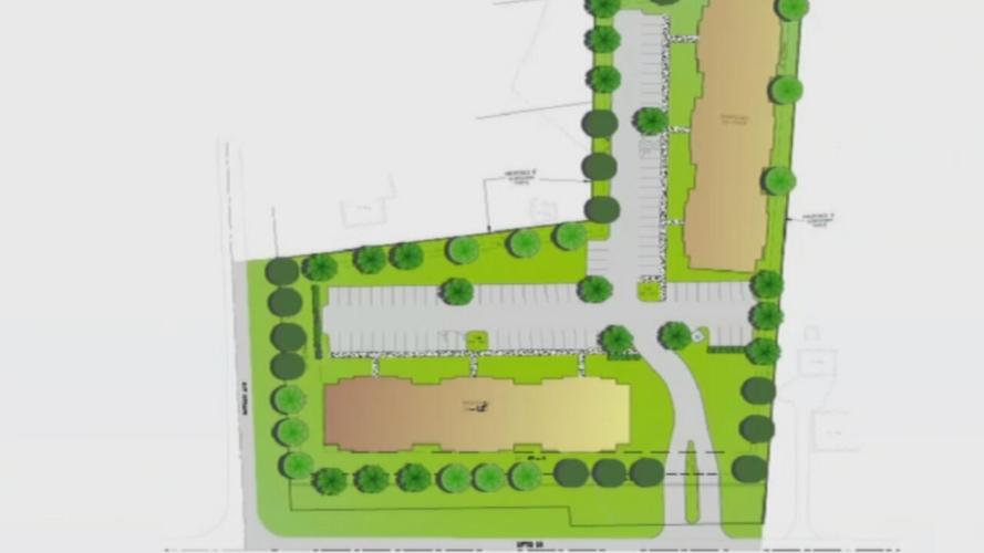
The proposed project would put a 48-unit development off River Road, near the Prospect Village Shopping Center.

Developers want the property to be rezoned from single family use to R-6, which would allow as many as 60 homes on the site. 

But, they say this plan is much different than the 198-unit, four story complex proposed for Prospect four years ago, that was shot down by Metro Council.

"Here, we're talking about a two-story development, so we're well below the maximum building height, more in keeping with the two-story and single-story homes that are around subject property. It is smaller, so we don't believe there should be a concern about traffic," Cliff Ashburner, attorney for the project's developers, said.

Residents also voiced their concerns about what could happen to the dozens of trees on the site.

Developers said they plan to save as many as possible and plant new ones, but they don't yet know just how many.

Comments from this and other meetings already held will be used to potentially alter the plans before they're filed with the city.

Copyright 2020 WDRB Media. All Rights Reserved.