LOUISVILLE, Ky. (WDRB) -- A Louisville nonprofit supporting people who are blind is celebrating its 165th anniversary with an expansion of its campus. 

American Printing House for the Blind (APH) has operated in Louisville since 1858. It provides accessible learning experiences through educational, workplace, independent living productions and services for people who are blind and low vision.

On Tuesday, American Printing House for the Blind announced plans to renovate and expand its campus by 100,000 square-feet. The project includes a new museum that will break ground in the spring.

"It’s not just 165 years of creating braille, books, and products. It’s 165 years of innovation, determination, and creativity that has kept us going," said Dr. Craig Meador, APH President. "We know the best is yet to come, as we will continue to break barriers and create equal opportunities for individuals we serve."

American Printing House for the Blind rendering.JPG

Rendering for new project at American Printing House for the Blind.

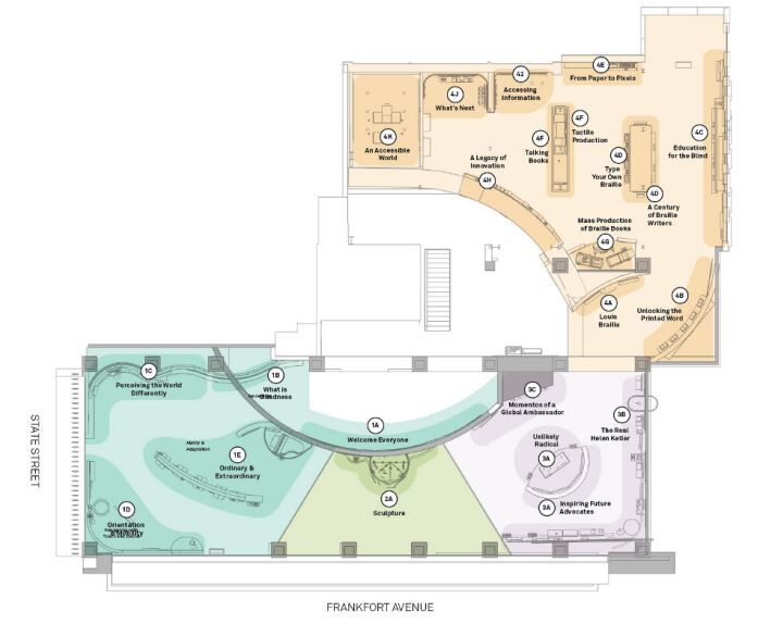
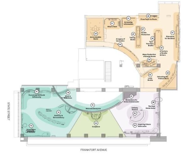
The Dot Experience features exhibits that are designed with the input of blind and low visions organizations, accessibility experts and members of the community. The museum will detail the nonprofit's long history of breaking barriers and innovation.

In the current museum, there are artifacts like a piano Stevie Wonder played at Michigan School for the Blind, Helen Keller's Bible and more items that date back to the early 1800s.

"We have a ton in storage, we have printing presses that are 6-feet, 5-feet, big huge thing," said Michael Hudson, the museum's director.

There will be three major sections, starting with how someone who is blind lives their every day life.

"It's going to demystify blindness and show you how you could become a celebrity chef, how you could climb a mountain or how you could get up and get on a bus and just go to an ordinary 9 to 5 job," Hudson said.

A partnership with the American Foundation for the Helen Keller archive to Louisville.

The museum will be designed to serve as a national model for accommodations that provide an enjoyable experience for visitors with disabilities. It will be four times as large of the current museum's floor area. The current space can't event handle a few dozen children at one time.

"Our goal for the new museum and manufacturing tour is to become a significant visitor destination in Louisville, and also model what it is to be an inclusive museum and to share that with others," said Phoebe A. Wood, Board Chair of APH.

American Printing House for the Blind will close its current museum in the early summer, and plans to open the new museum in 2025. Offices are also being renovated as part of the project.

Construction is being led by PLC Management, KNBA Architects and Bosse Construction.

The latest project is another in centuries of growth. Since the original building was occupied in 1883, there have been 16 distinct building additions of vary sizes and configurations.

American Printing House for the Blind initially started its first press that embossed books in the basement of Kentucky School for the Blind in 1866. Innovation continued when it recorded its first talking book in 1936. This year, the organization introduced a device that changes the way braille and tactile graphics are delivered.

To learn more about the nonprofit on Frankfort Avenue in the Clifton neighborhood, click here.

Copyright 2023 WDRB Media. All Rights Reserved.