Downtown La Grange, Kentucky

LA GRANGE, Ky. (WDRB) -- A new multimillion-dollar park coming to downtown La Grange, Kentucky, is expected to boost tourism and the local economy. 

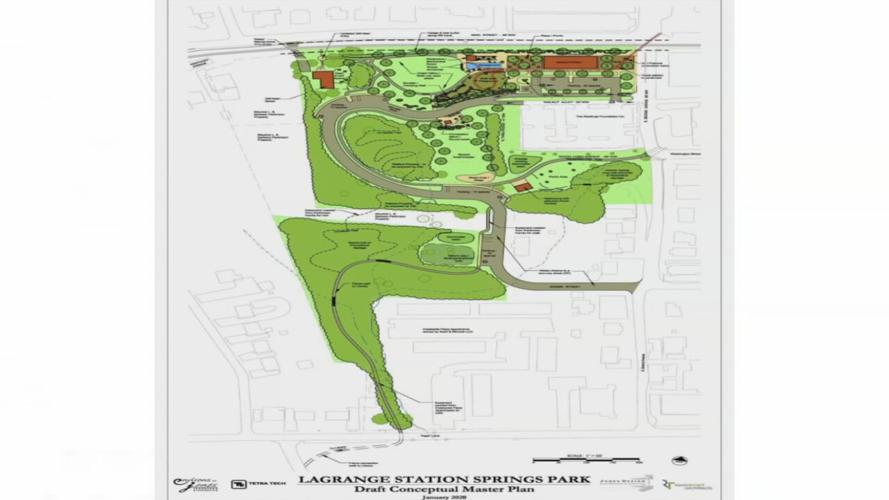
Mayor John Black said the COVID-19 pandemic has presented the right time to develop the 9-acre Springs Park project, which he said will change the city's landscape and bring more people downtown. 

"A new farmers market pavilion, a state-of-the-art splash pad for the kids, a playground area," Black said while pointing out where the new amenities will be located. "... The more we do in our downtown, that should help bring folks here." 

City officials have already invested $3 million toward the project, which also includes a new skate park, an amphitheater and walking trails.

Master plan for Springs Park in La Grange, Kentucky

The master plan for Springs Park in La Grange, Kentucky

Black said the addition of the park will be a bright spot for the town during difficult times. 

"With the pandemic and all the crisis facing our cities, our towns, our country, I think cities like ourselves need a good shot in the arm to try to bring some happiness and some excitement," he added.

The mayor also plans to capitalize on low interests rates with the long-term investment. 

La Grange Mayor John Black

La Grange Mayor John Black

"Interest rates are the lowest they've ever been — probably in our nation's history — so I'm locking in on that cheap money," Black said. 

Just across the street, Oldham County plans to build a new $20 million courthouse complex, adding to its existing historical structure. Ground will be broken at the new park in the spring of 2021, stitching a new fabric for downtown La Grange.

"I'm trying to put together piece by piece here in our city to make it one of the most enjoyable and livable cities in the state of Kentucky," Black said. 

Copyright 2020 WDRB Media. All Rights Reserved.