Greyhound station in downtown Louisville

LOUISVILLE, Ky. (WDRB) -- Apartment builder LDG Development filed an application this week with Louisville Metro Government for its planned affordable housing complex downtown.

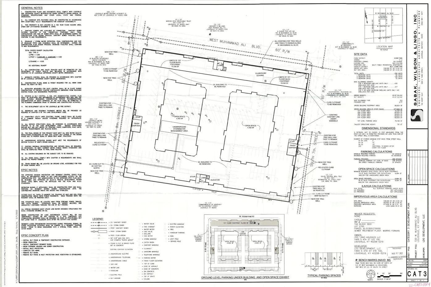
On the site of the Greyhound Bus Station on Muhammad Ali Boulevard between 7th and 8th streets in downtown Louisville, the company plans to build a six-story, multi-family development, plans show.

The complex would have first-floor parking and consist of 256 one-, two- and three-bedroom units. Plans show space for two courtyards within the complex, each more than 4,000 square feet.

Renderings of the proposed complex haven't been released yet.

LDG Land Holdings LLC, the company's land acquisition arm, completed the purchase of the Greyhound property Oct. 28, according to online records of the Jefferson County Property Valuation Administrator. Christi-Lanier Robinson, executive vice president for LDG, said buying the bus station is in line with the company’s mission of looking for sites for affordable housing.

LDG manages more than 20 apartment, condominium and patio home complexes in Kentucky, and works in seven states. 

Related Stories:

Copyright 2022 WDRB Media. All Rights Reserved.